PROPOSED RENOVATION
EXISTING RESIDENCE
WOODLAND AVE RENOVATION, ROYAL OAK, MI
RENOVATION & EXPANSION
FRONT FACADE
BACKYARD VIEW
SIDE VIEW
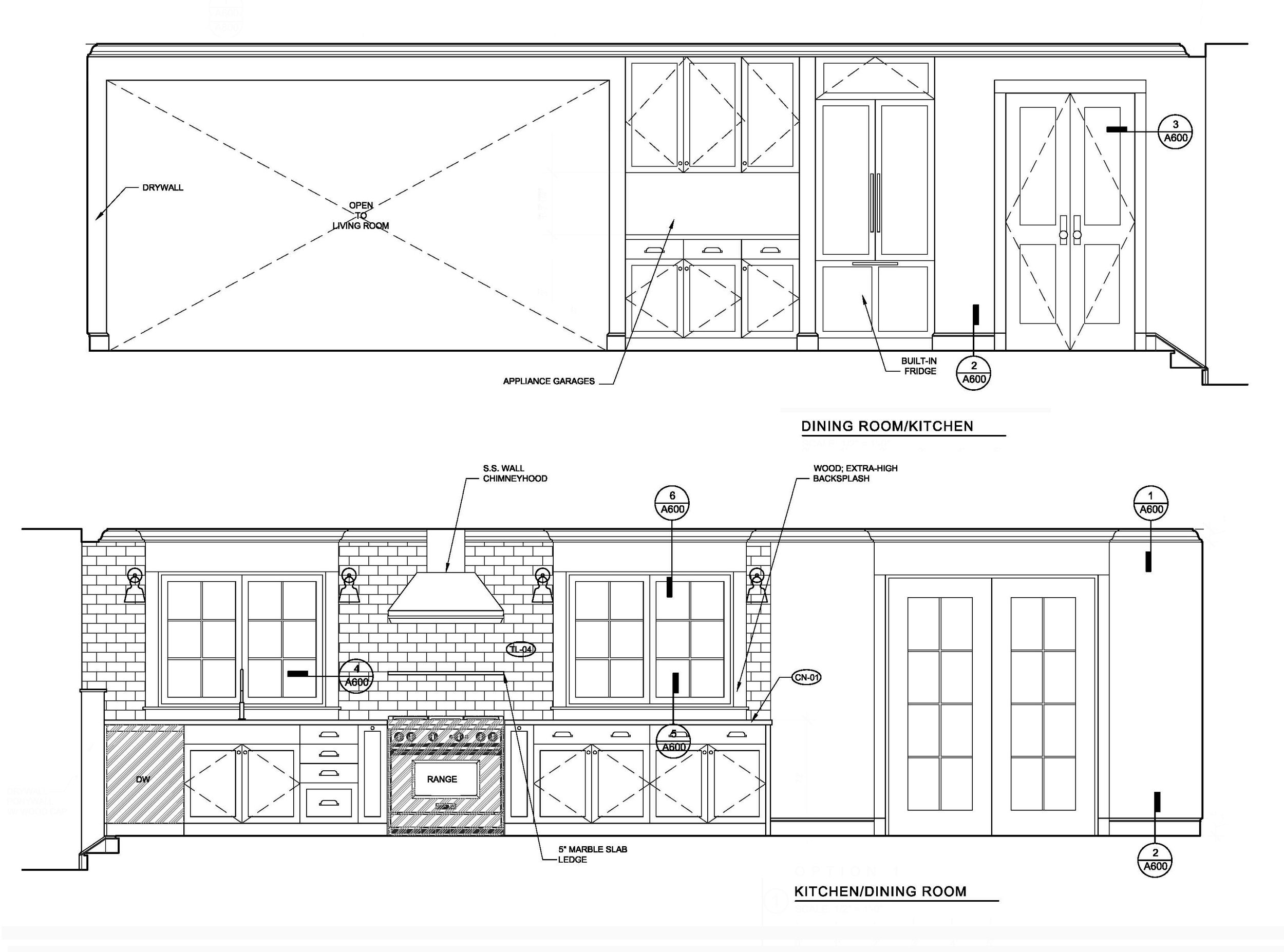
PROPOSED KITCHEN
PROPOSED RENOVATION
EXISTING RESIDENCE
RENOVATION & EXPANSION
FRONT FACADE
BACKYARD VIEW
SIDE VIEW
PROPOSED KITCHEN